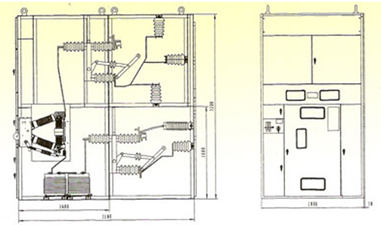
產品概述:
云南匯吉實業有限公司生產和銷售的KGN-40.5鎧裝固定式金屬封閉開關設備(以下簡稱開關柜)適用于三相交流50HZ,額定電壓40.5KV的戶內電力系統中,作為發電廠、變電所等工礦企業配電室接受、分配電能之用。該柜采用空氣絕緣,結構為金屬鎧裝式,滿足GB3906-2006《3.6~40.5KV交流封閉開關設備》的要求,內部結構采用金屬鎧裝式空氣絕緣,具有良好的“五防”功能;聯鎖程序可靠,檢修安全。該柜運行方案齊全,提高電力系統的正常供電和設備正常運行的可靠性,方便運行管理和減少維修工作量,為當今固定式開關柜首選柜型。
產品特點:
1)本開關柜外形設計美觀、外觀質量好、內部結構緊湊布置科學合理且易于檢修。
2)該柜采用空氣絕緣,不同隔室之間均有金屬隔板相間隔,每個隔室均有獨立的泄壓通道,防護可靠、檢修安全。
3)本柜配套的ZN12-40.5真空斷路器為固定式安裝,性能穩定、運行可靠,設計參數高,且與開關柜具有良好的閉鎖功能。
4)本柜使用的經過改進的GN27-35型系列帶地刀隔離開關,設計科學、合理,操作靈活,程序可靠。
5)本柜使用的經過改進的JSXGN-35機械連鎖機構,使本柜的“五防”功能達到了完美的效果。確保了本柜檢修的安全、可靠性。
產品技術參數 :
項目 | 單位 | 數據 | |
額定電壓 | KV | 40.5 | |
絕緣水平 | 工頻耐壓(1min) | KV | 95 |
雷電沖擊耐壓(峰值) | KV | 185 | |
額定電流 | A | 1600 2000 2000 | |
額定開斷電流(有效值) | KA | 20 25 31.5 | |
額定開斷次數 | 次 | 20 20 20 | |
額定短路關合電流(峰值) | KA | 50 63 80 | |
動穩定電流 | KA | 50 63 80 | |
熱穩定電流 | KA | 20 25 31.5 | |
熱穩定電流熱穩定電流時間 | S | 4 | |
防護等級 | IP2X | ||
操作方式 | 彈簧儲能式 | ||
母線系統 | 單母線或單母線分段 | ||
外型尺寸(寬×深×高) | 1818×3100×3200 | ||
產品外形:




