產品概述:
KYN1-12、JYN2-12型移開式交流金屬封閉開關柜系列手車是三相交流50Hz的戶內裝置,除用于配電系統作配電斷路器外,還適用于控制及保護電流變壓器、高壓電動機、開合電容器組等操作比較頻繁的場所。
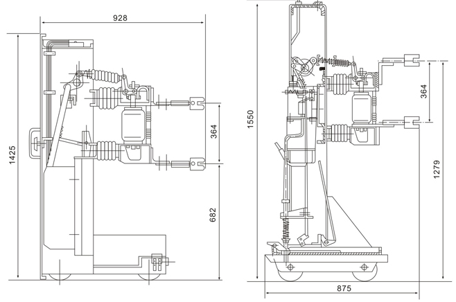
手車是開關的核心部件之一,用鋼板彎制焊接而成,底部裝有四只滾輪,能沿水平方向移動,還裝有接地觸頭、導向裝置、鎖定機構及手車進出手搖機械裝置。
產品主要技術參數:
序號 | 項目 | 單位 | 參數 | ||||||||||||
20kA | 25kA | 31.5kA | 40kA | ||||||||||||
1 | 額定電壓 | kV | 12 | ||||||||||||
2 | 額定電流 | A | 630 1000 1250 | 630 1000 1250 2000 | 1250 2000 3150 4000 | ||||||||||
3 | 額定短路開斷電流 | kA | 20 | 25 | 31.5 | 40 | |||||||||
4 | 額定短路關合電流(峰值) | kA | 50 | 63 | 80 | 100 | |||||||||
5 | 額定峰值耐受電流 | kA | 50 | 63 | 80 | 100 | |||||||||
6 | 4s額定短路耐受電流 | kA | 20 | 25 | 31.5 | 40 | |||||||||
7 | 額定絕緣水平 | 工頻耐壓(額定開斷前后) | kV | 42 | |||||||||||
沖擊耐壓(額定開斷前后) | 75 | ||||||||||||||
8 | 額定操作順序 | O-0.3s-CO-180s-CO | |||||||||||||
9 | 機械壽命 | 次 | 10000 | ||||||||||||
10 | 額定短路開斷電流開斷次數 | 次 | 30 | 20 | |||||||||||
11 | 觸頭開距 | mm | 11±1 | ||||||||||||
12 | 超行程(觸并沒有彈簧壓縮長度) | mm | 4±1 | ||||||||||||
13 | 三相分、合閘不同期性 | ms | ≤2 | ||||||||||||
14 | 觸頭合閘彈跳時間 | ms | ≤2 | ||||||||||||
15 | 平均分閘速度(剛分6mm) | m/s | 1.1±0.2 | ||||||||||||
16 | 平均合閘速度 | m/s | 0.6±0.2 | ||||||||||||
17 | 分閘時間 | 最高操作電壓下 | s | ≤0.06 | |||||||||||
電低操作電壓下 | ≤0.08 | ||||||||||||||
18 | 合閘時間 | s | ≤0.2 | ||||||||||||
19 | 各相主回路電阻 | μΩ | ≤50 | ≤40 | |||||||||||
20 | 動靜觸頭允許磨損累積厚度 | mm | 3 | ||||||||||||
21 | 油緩沖器緩沖行程 | mm | 100-2 | ||||||||||||
產品外形及安裝尺寸:




