產品概述:
VS1(ZN63A)-12戶內交流高壓真空斷路器適用于三相交流50Hz,10kV的電力系統中作投切各種不同性質的負荷及頻繁操作的場合,可供工礦、企業、發電廠及變電站電氣設備的保護和控制之用。可配用KYN28-12(GZS1)等中置手車式開關柜,也可配于XGN-12固定式開關柜。
本產品符合國家標準GB1984《交流高壓斷路器》、JB3855《3.6-40.5kV戶內交流高壓真空 斷路器》和IEC60056《高壓交流斷路器》標準。滿足DL/T403《12-40.5kV戶內高壓斷路器訂貨技術條件》。
產品使用環境條件:
1、環境氣溫度:上限+40℃,下限-10℃;
3、相對濕度:日平均相對濕度:≤95%;月平均相對濕度:≤90 %;
日平均飽和蒸氣壓:≤2.2×10-3MPa,月平均飽和蒸氣壓:≤1.8×10-3MPa,
2、海拔高度:2000m及以下;
4、地震烈度:不超過8度;
5、使用場所無易燃、爆炸危險、化學腐蝕及劇烈振動。
產品結構特點:
1、斷路器的滅弧室與操動機構部分采用前后配置方式,通過傳動機構連接為一個整體,以保證斷路器的總體配合性能。
2、采用中封式陶瓷真空滅弧室,銅鉻觸頭材料及縱磁場觸頭結構為當今世界公認的最先進的熄弧方式。
3、真空滅弧室裝在采用APG新藝成型的絕緣筒內,不僅縮小了斷路器的整體尺寸,還防止了異物對滅弧的損傷和表面污染。
4、絕緣筒在借鑒國外同類產品優點的基礎上,增設內裙邊和加強筋,提高了絕緣水平和抗動穩定電流的能力。
5、操動機構采用彈簧儲能式,具有電動和手動儲能兩種功能,斷路器工作時儲能彈簧的能量通過輸出凸輪傳遞給連桿機構,再通過連桿機構傳遞到動觸并沒有部分。
6、先進合理的緩沖裝置,分閘無反彈,減弱分閘沖擊和震動。
7、無需調整,極少維護或免維護。
8、機構壽命高達20000次。
產品型號及含義:
產品主要技術參數:
序號 | 項目 | 單位 | 參 數 | ||||||
1 | 額定電壓 | kV | 12 | 12 | 12 | 12 | 12 | 12 | |
2 | 額定電流 | A | 630 1250 | 630 1250 | 630 1250 1600 | 630 1600 2000 | 630 2500 3150 | 2000 2500 3150 4000 5000 | |
3 | 額定絕緣水平 | 1min 工頻耐壓 | 42 | 42 | 42 | 42 | 42 | 42 | |
額定雷電沖擊耐壓 | kA | 75 | 75 | 75 | 75 | 75 | 75 | ||
4 | 額定短路開斷電流 | kA | 16 | 20 | 25 | 31.5 | 40 | 50 | |
5 | 額定短路關合電流(峰值) | kA | 40 | 50 | 63 | 80 | 100 | 130 | |
6 | 額定(峰值)耐受電流 | kA | 40 | 50 | 63 | 80 | 100 | 130 | |
7 | 額定短時耐受電流 | kA | 16 | 20 | 25 | 31.5 | 40 | 50 | |
8 | 額定短路開斷電流開斷次數 | 次 | 50 | 50 | 50 | 50 | 30 | 20 | |
9 | 額定短路持續時間 | s | 4 | 4 | 4 | 4 | 4 | 4 | |
10 | 額定操作順序 | 分-t合分-180s-合分 | |||||||
11 | 機械壽命 | 次 | 20000 | 20000 | 20000 | 20000 | 10000 | 10000 | |
12 | 額定單個電容器組開斷電流 | A | 630 | 630 | 630 | 630 | 630 | 630 | |
13 | 額定背靠背電容器組開斷電流 | A | 400 | 400 | 400 | 400 | 400 | 400 | |
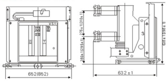
產品外形及安裝尺寸:






